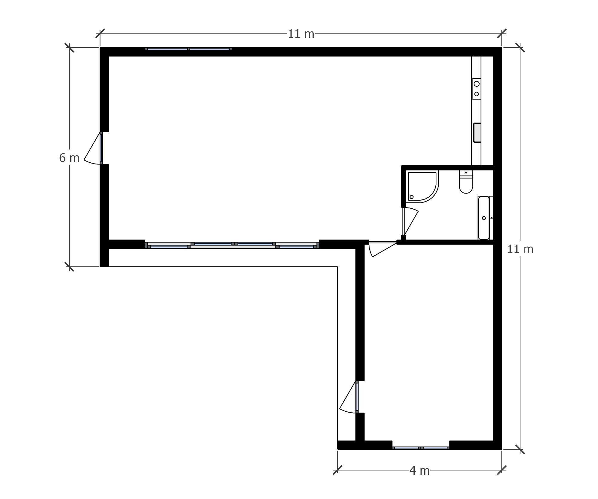
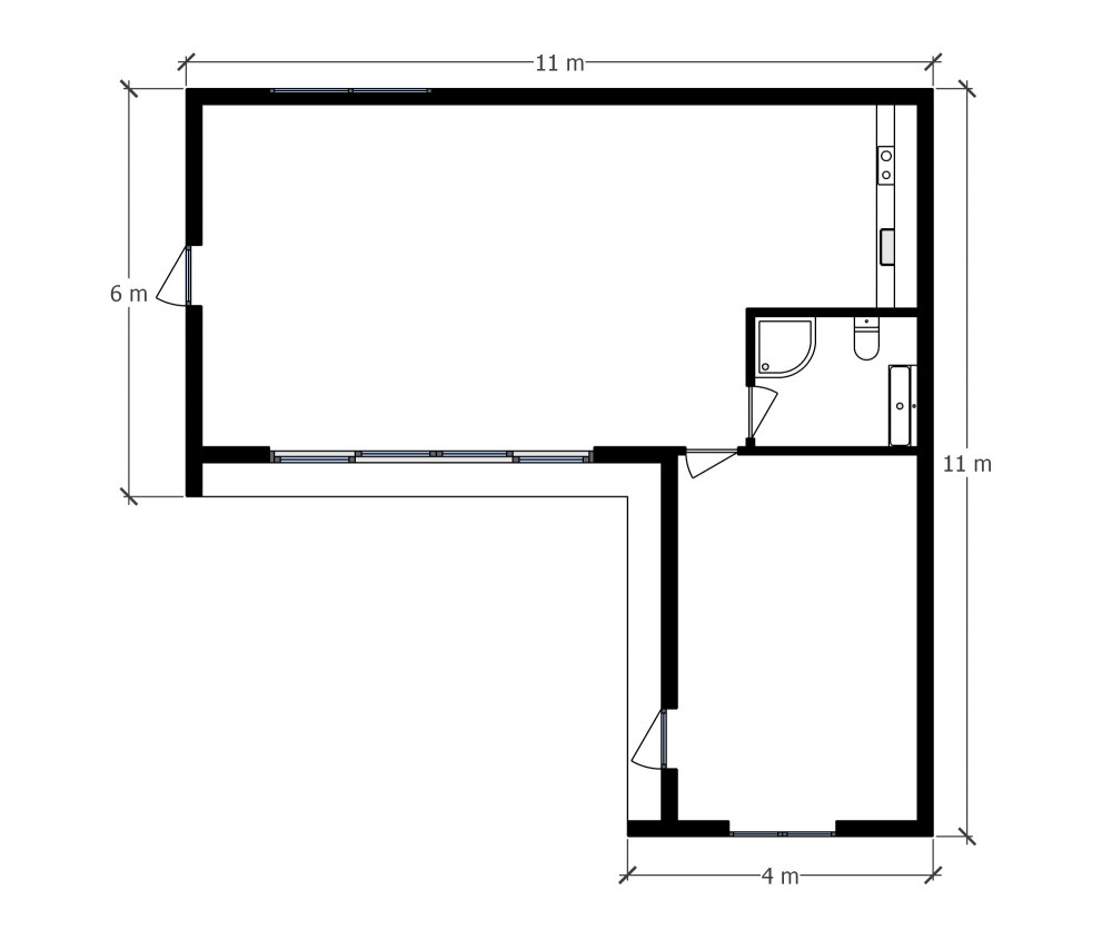
Kent
Inspiration Kent
Holiday home in Kent
Style and comfort on a grander scale with generous guest accommodation in Kent