Otford
Inspiration Otford
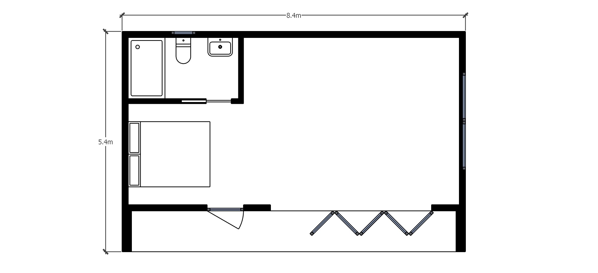
Guest annexe in Otford
This stylish outdoor room delivered extra guest accommodation in Otford and maximised the use of space with its integral foldaway bed.