Primrose Hill

Inspiration Primrose Hill

Garden rooms that provide extra self- contained living space

Imagine creating you personal home retreat. Make it luxurious or keep it simple.
These clients decided to go for a bohemian look for their private garden annex, inclusive of a fully equipped kitchen and shower room.
The perfect space to accommodate guests and friends.

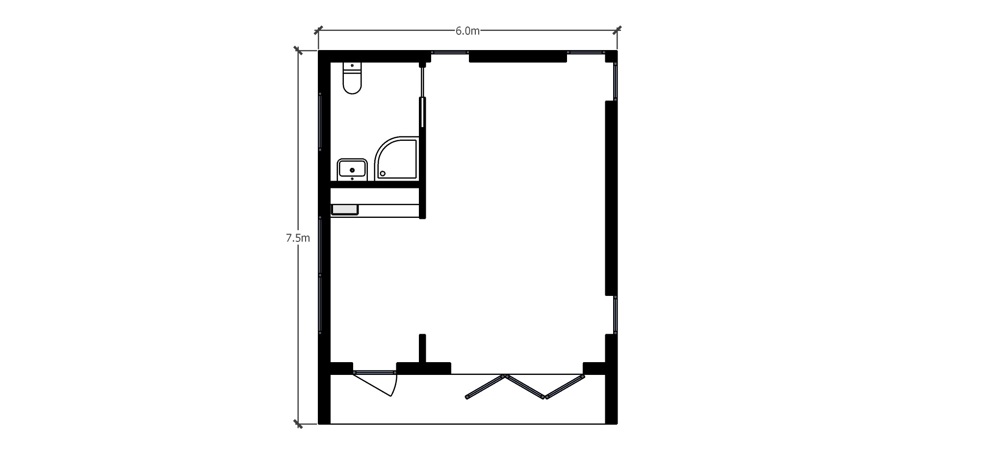
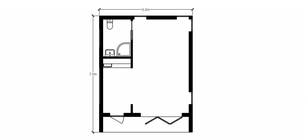
Floor Plan