Putney Bridge

Inspiration Putney Bridge

Garden retreat away from the house in Putney Bridge

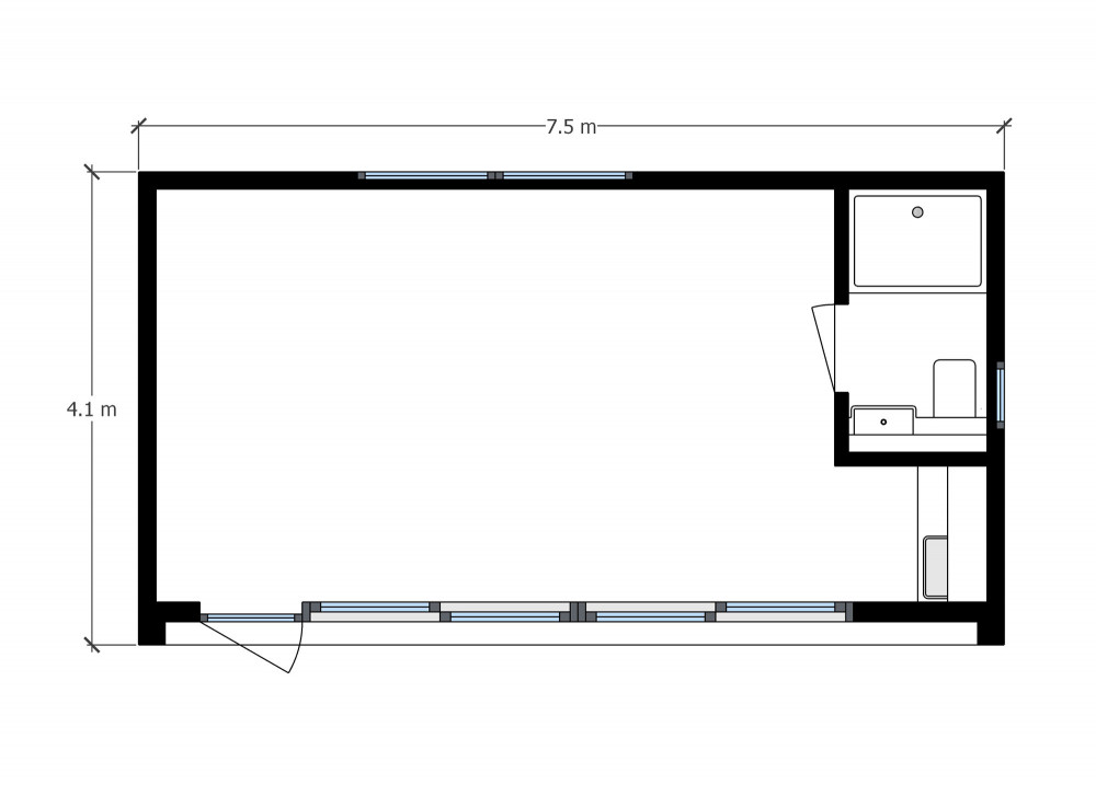
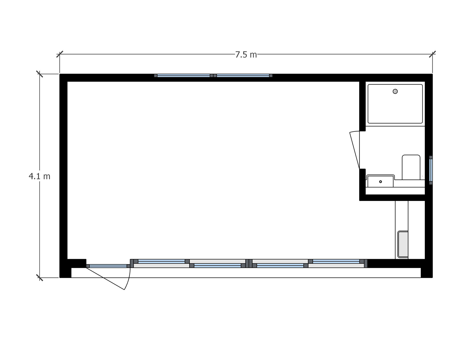
Rooms Outdoor were able to incorporate a mature tree into the design of this garden annexe in Putney Bridge. The owners needed a secluded space away from the main house to use as a convenient extra guest room; it’s got its own shower room and kitchenette.

 

FLOOR PLAN

CONSTRUCTION PHOTOS