Wandsworth

Inspiration Wandsworth

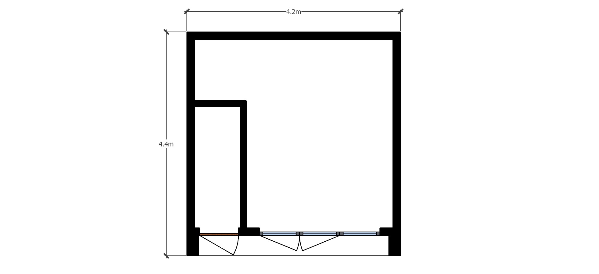
An outdoor room that fits perfectly into small urban spaces

When space is at a premium as in this south London property, there’s still room for a bespoke garden studio. Although separate, this garden retreat stays part of the urban property connecting to the outdoor living space through the folding doors.

Floor Plan