Camden

Garden room that provides extra self-contained living space

This garden studio has something for everyone. It can be a guest bedroom, a den for teenagers or a garden retreat for everyone. With a bespoke layout that includes a kitchenette, it also makes for a convenient home office or workshopping space.

 

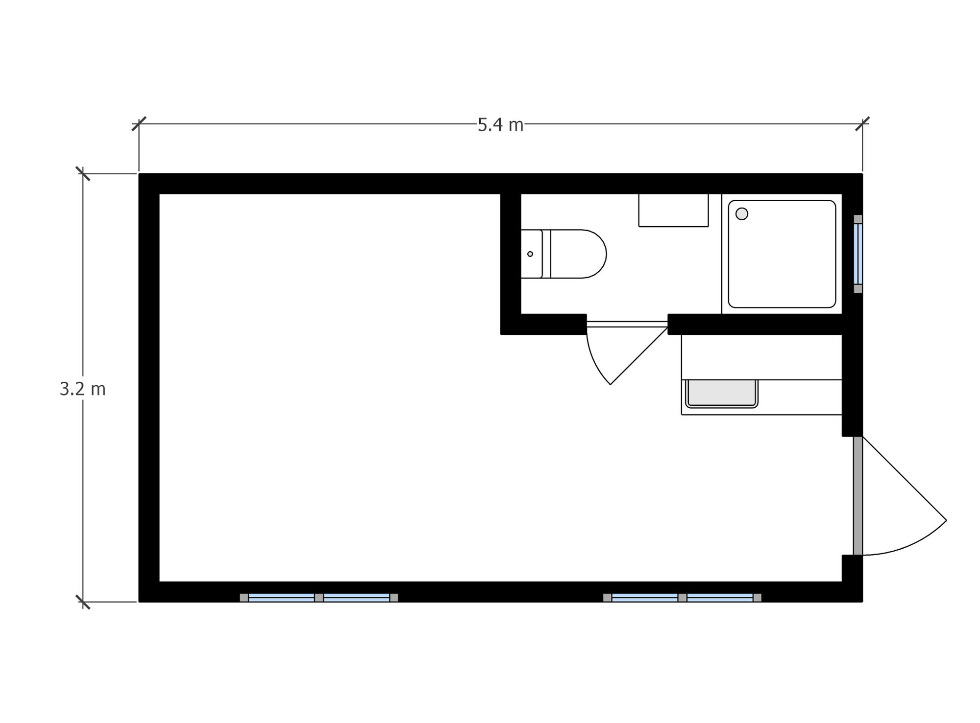
Floor Plan

Construction Photos