Llandudno

A garden room that’s also a guest suite in Wales

This architect designed guest annexe was created by Rooms Outdoor in the garden of a holiday home in Llandudno, North Wales.
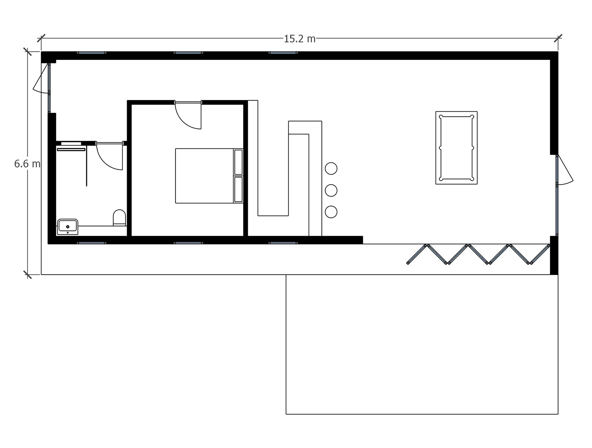
Completely self-contained, the bespoke outdoor room includes a double bedroom, shower room, bar and a games room. The spacious outdoor decking area makes it ideal for the family to relax and entertain their guests.

 

Floor Plan

Construction photos