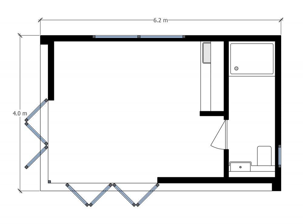
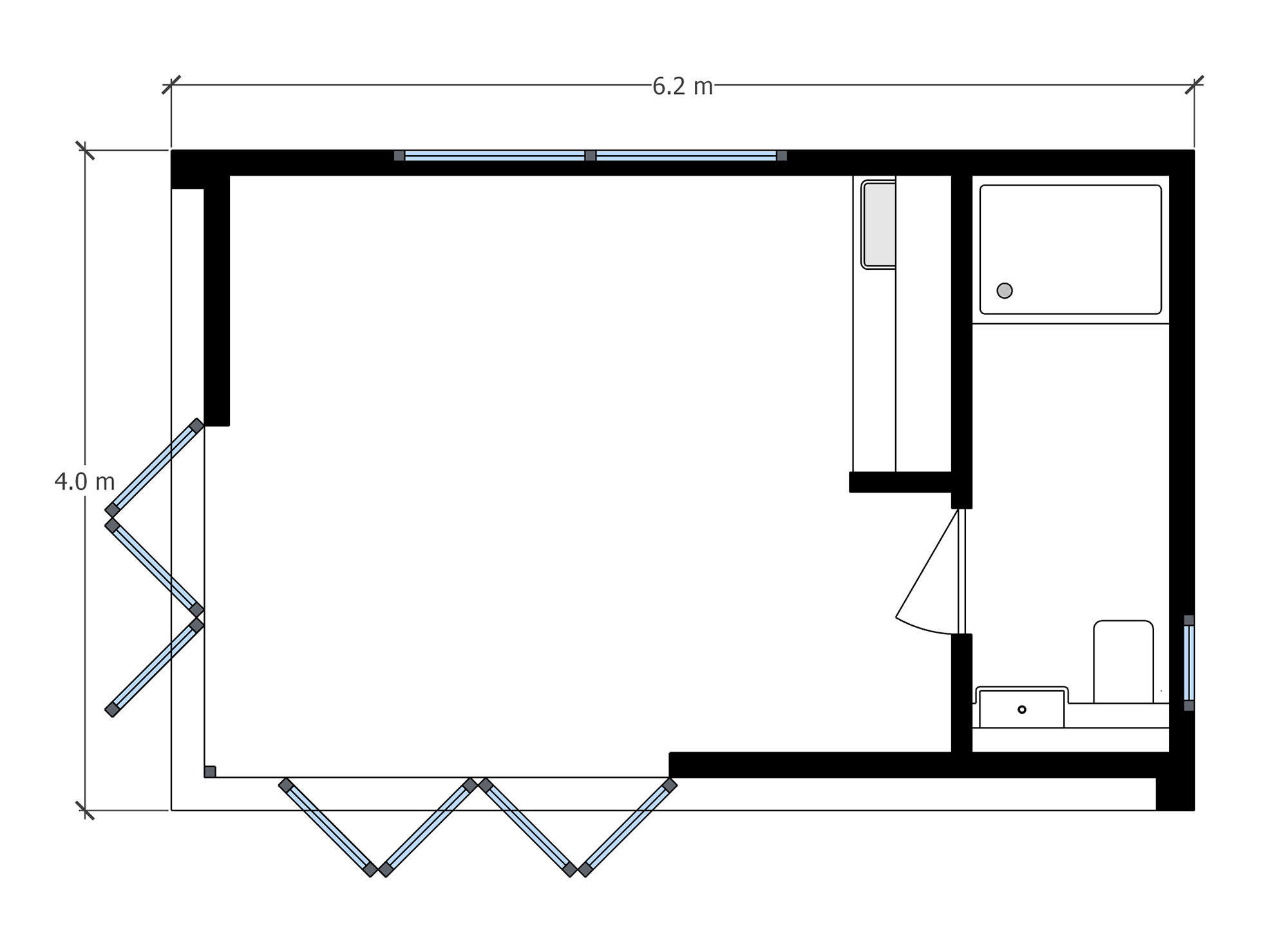
Marlow
Inspiration Marlow
An elegant poolside room for socialising in Marlow
Rooms Outdoor created this contemporary poolside studio in a large garden in Marlow, Buckinghamshire. Not only is it a handy changing room but it also allows the owners to enjoy life al fresco whether dining or socialising.