Seer Green

Inspiration Seer Green

An outdoor room landscaped into a Seer Green garden

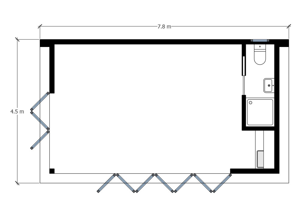
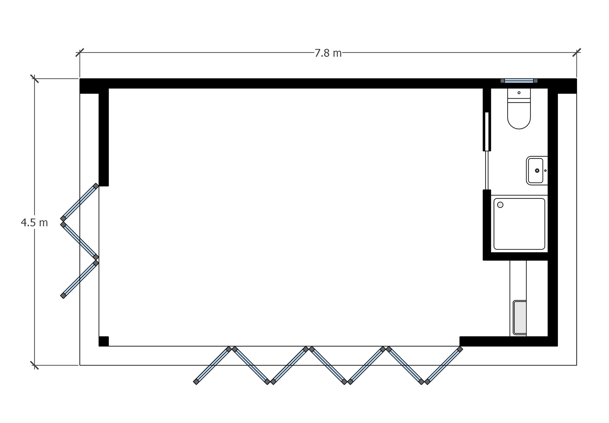
This bespoke garden studio which is used as a home gym blends perfectly into the Buckinghamshire landscape. Bi-folding doors open onto the decking that extends into the woodland, while the sedum roof is visible from the house’s terrace. The gym includes a shower room and water station.

 

Floor Plan