Strawberry Hill

Inspiration Strawberry Hill

Garden office in a landscaped property in Strawberry Hill

This beautiful garden office contains all the elements required to successfully work from home.

It’s fully insulated, completed with toughened double-glazing, lighting, heating, telephone and data points. This dedicated and self-contained workspace provides a private, warm and secure working environment.

It does even include a smart kitchenette for your coffee breaks and a lounge area for meetings. The lovely outdoor patio is ideal for relaxing after a long day at work!

 

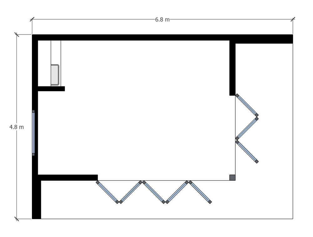
Floor plan

Construction photos