Totteridge

Inspiration Totteridge

A poolside relaxation room in Totteridge

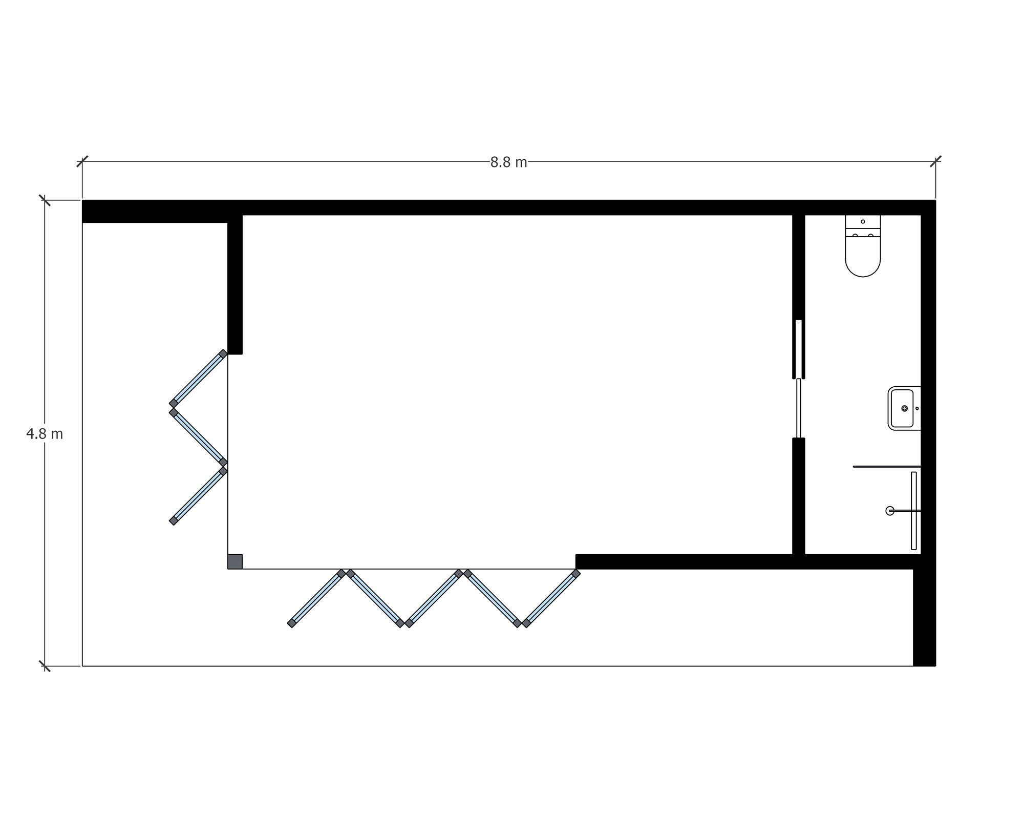
Our clients were looking for an exclusive pool house, nestled at the end of their beautiful garden; a room that the whole family could enjoy at the back of the garden. Rooms Outdoor provided a bespoke building, cladded in Western Red Cedar, that perfectly blends in with the established trees and shrubs; it almost feels as if the garden room has always been part of the property! It is a space that can be used all year round; perfect during the hot summer days thanks to the deep overhang that shields from the sun and the bifold doors that open directly on the swimming pool. Highly insulated, it can be turned into the ideal chill out room in the colder evenings and weekends.It incorporates a bespoke shower room, with dark herringbone tiles, gold details and a waterfall shower head for a sleek contemporary look. A drink station area completes this versatile entertainment space.

 

FLOOR PLAN

CONSTRUCTION PHOTOS